x roundedx circlex wordpress circlewordpress roundedwordpress phone circlephone roundedphone yelp roundedyelp circleyelp circlevsco roundedvsco vsco fa-chevron-up circlesnapwire roundedsnapwire snapwire roundedemail email circleemail 500px behance blogger circle500px circlebehance circleblogger circledribbble circlefacebook circleflickr circlegoogleplus circlehouzz circleinstagram circlelinkedin circlepinterest circletumblr circletwitterbird circlevimeo circleyoutube clickbooq_infinity dribbble facebook flickr googleplus houzz instagram linkedin pinterest rounded500px roundedbehance roundedblogger roundeddribbble roundedfacebook roundedflickr roundedgoogleplus roundedhouzz roundedinstagram roundedlinkedin roundedpinterest roundedtumblr roundedtwitterbird roundedvimeo roundedyoutube tumblr twitterbird vimeo youtube
u

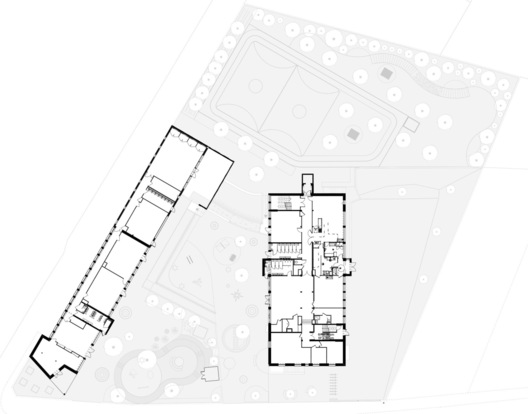
GROUPE SCOLAIRE LES VAUGONDIÈRES

Réhabilitation complète et extension d'un groupe scolaire

26, rue des Vaugondières 63370 Lempdes

Le projet consiste en la réhabilitation des deux bâtiments existants et d'une extension d'environ 315 m2 qui s'implante dans la continuité de l'école maternelle. L'extension est composée de deux volumes à deux pans, dont un suit la morphologie du bâtiment existant. Le dernier volume bâti est composé d'un espace intérieur et d'un préau de 73 m2 environ en RDC et d'un niveau inférieur. L' aménagement paysager intègre l'extension à l'existant mais aussi permet de nouveaux usages et accès entre les cours hautes et basses.

En association avec l'agence Dooble

Maître d'ouvrage : Mairie de LEMPDES

Équipe : DOOBLE - Architecte mandataire, FACE A - Architecte associé,  EUCLID - Économiste, EUCLID - BE Fluides, EUCLID - BE Structure, Agna - Bureau d'études accoustique, BET RÉALITÉS - Bureau d'étude VRD et Paysages

Mission : EXE + DET

Montant de travaux : 3 500 k€ HT

Surface : 2 515 m2

Performances :

Livraison : 2026 pour le groupe scolaire et 2027 pour les extérieurs